Mezquita Catedral. Ampliación de Abd al-Rahman II. InicioWEB personal con 46.545 páginas, 206.048 imágenes
 Inicio 
 Sitios 
 Setas 
 Otras 
Sitios > Europa > Unión Europea > España > Andalucía > Provincia de Córdoba > Córdoba
Mezquita Catedral. Ampliación de Abd al-Rahman II
ImprimirInformaciónMandar
AnteriorMezquita Catedral. Ampliación de Abd al-Rahman II - Mezquita Catedral. Ampliación de Abd al-Rahman II. Situación
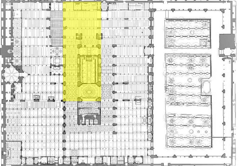
Situación
Mezquita Catedral. Ampliación de Abd al-Rahman II. Mezquita Catedral. Ampliación de Abd al-Rahman II. Columna de alabastroMezquita Catedral. Ampliación de Abd al-Rahman II. Lateral de la Capilla Mayor
Mezquita Catedral. Ampliación de Abd al-Rahman II. Situación
Escucha este texto[Escucha este texto]
  • La primera ampliación de la Mezquita Aljama1 de Córdoba
  • Fue realizada entre los años 833 y 855 debido al incremento de población habido en Córdoba durante el mandato de este emir que hizo que se quedara pequeño el recinto original de la Mezquita (Mezquita Catedral. Mezquita de Abd al-Rahman I).
  • Durante este emirato, la capital cordobesa vivió una etapa de gran esplendor cultural y artístico que, a su vez, se vio reflejado en el gran auge económico que experimentó la sociedad cordobesa.
  • La ampliación consistió en una prolongación del edificio hacia el Sur, acercándose al Río Guadalquivir, mediante la adición de ocho nuevos tramos a cada una de sus once naves que prolongaban su longitud en veinticuatro metros.
  • Para dichas obras, fue necesario derribar el primer mihrab de la Mezquita y el muro de la quibla.
  • En el nuevo espacio se añadieron setenta nuevas columnas carentes de basa, procedentes tanto éstas como los capiteles de anteriores construcciones cordobesas, de igual manera a como se había hecho durante la primera construcción de la Mezquita.
  • Algunas de estas columnas tienen fustes de estrías helicoidades y otros acanalados, habiéndose construido específicamente para esta ampliación dieciséis nuevos capiteles, realizados en estilo corintio trabajado con trépano.
  • Cuatro de ellos podemos verlos sosteniendo el arco del mihrab de al-Hakam II.
  • Durante estas obras, se construyen unos modillones más sencillos, al estilo de los existentes en las naves laterales de la construcción original.
  • Se reutilizaron diecisiete cimacios procedentes de la Basílica de San Vicente.
  • Otra labor llevada a cabo fue la ampliación de las azaquifas, o portales de las mujeres.
  • Columnas del antiguo mihrab de Abd al-Rahman II reutilizadas en el de al-Hakam II
  • Tras la construcción de otras dos nuevas ampliaciones y del crucero de la Santa Iglesia Catedral, para lo que hubo que derribar más de la mitad de esta fábrica, ha sido de ella de la que menos ha llegado hasta nuestros días.
  • El edificio ha quedado delimitado al Norte por la Mezquita original; al Sur, por la ampliación de Al-Hakam II; y al Este, por la ampliación de Almanzor, de tal forma que sólo su muro Oeste ha quedado como límite exterior.
  • Aunque el mihrab de Abd al-Rahman II fue destruido durante la segunda ampliación de Al-Hakam II (961-966), las dobles columnitas de las jambas fueron reutilizadas en el mihrab de esta última ampliación.


Contadores
Página confeccionada por Francisco Miguel Merino Laguna
Ver 2-20042301